Art.Nr.:
Hersteller:-
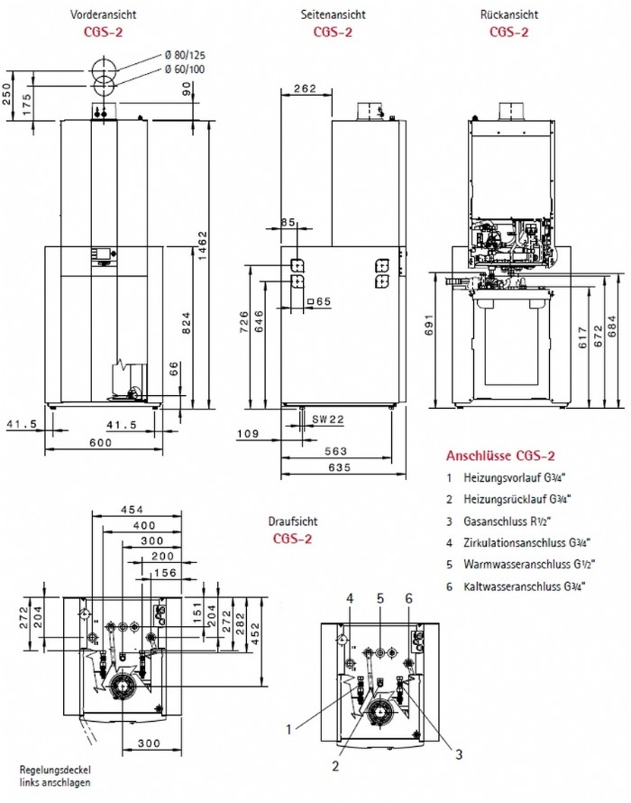
Wolf ComfortLine Gasbrennwertzentrale CGS-2L
Stehende Gasbrennwert-Zentrale mit Schichtenspeicher aus Stahl, emailliert
Preis auf Anfrage
Haustechnik GmbH Heizung-Sanitär-Gas
Johann-Gottfried-Galle-Straße 1
06773 Gräfenhainichen
Telefon: 034953-33673
Johann-Gottfried-Galle-Straße 1
06773 Gräfenhainichen
Telefon: 034953-33673
Telefax: 034953-25590
Email: info@allner-haustechnik.net
Email: info@allner-haustechnik.net









