Art.Nr.:
Hersteller:-

Oventrop Frischwasserstation Regumaq

mit oder ohne Zirkulationsanschluss; Leistung 80 Ltr./min

Preis auf Anfrage
Haustechnik GmbH Heizung-Sanitär-Gas
Johann-Gottfried-Galle-Straße 1
06773 Gräfenhainichen

Telefon: 034953-33673
Telefax: 034953-25590
Email: info@allner-haustechnik.net
Variante:

Tabs

 
Oventrop Frischwasserstation Regumaq
mit oder ohne Zirkulationsanschluss
Leistung 80 Ltr./min
 
 

Die Frischwasserstation ist eine elektronisch geregelte Armaturenbaugruppe mit Plattenwärmeübertrager für die hygienische Trinkwassererwärmung im Durchlaufprinzip.

  • Hygienisch einwandfreie Trinkwassererwärmung
  • Elektronische Regelung
  • Hohe Übertragungsleistung
  • Für den Anschluss an den Speicherkreislauf und den Trinkwasserkreislauf (DN 25)
  • Flachdichtend
  • Mit Montagevorrichtung für die Wandbefestigung

Technische Daten: 

Allgemein

  • Max. Betriebstemperatur: +95°C
  • Max. Betriebsdruck (Primärseite): 10 bar
  • Max. Betriebsdruck (Sekundärseite): 10 bar
  • Max. Förderhöhe (Primärseite): 10,5m
  • Plattenanzahl Wärmeübertrager: 46
  • KV (Primärseite): 6,9
  • KV (Sekundärseite): 6,6

Medium

  • Primärseite: Heizungswasser
  • Sekundärseite: Trinkwasser

Station

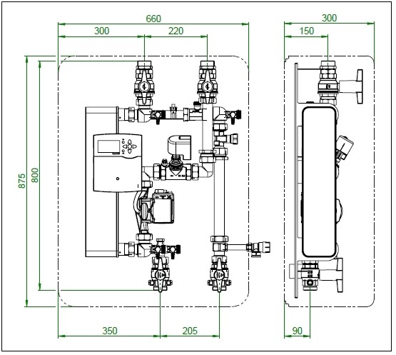
  • Höhe: 875 mm
  • Breite: 660 mm
  • Tiefe: 300 mm

Anschlüsse

  • Primär- / Sekundärseite: G1½ AG
  • Achsabstand Primärseite: 220 mm
  • Achsabstand Sekundärseite: 205 mm
  • Achsabstand – Wand (Primär): 150 mm
  • Achsabstand – Wand (Sekundär): 90 mm
  • Abstand Dichtflächen: 800 mm
Oventrop Frischwasserstation Regumaq
 

Herstellerinformationen

 

TWL-Technologie GmbH

Im Gewerbegebiet 2 - 12

Mail: vertrieb@twl-technologie.de

D-92271 Freihung

Web: https://www.twl-technologie.de
Deutschland