Solarfocus Pelletskessel ecoPELLzero / ecoPELLlight
50 bis 80 kW
Johann-Gottfried-Galle-Straße 1
06773 Gräfenhainichen
Telefon: 034953-33673
Email: info@allner-haustechnik.net
50 bis 80 kW
Pelletskessel ecoPELLzero und ecoPELLlight Pelletskessel mit automatischem Multi-Kipprost für sauberen und stabilen Betrieb. Herausragende Verbrennungstechnik durch Hochtemperatur-Siliziumkarbid-Brennkammer und Lambdasonde. Automatische Zündung durch geräuschlose Keramik-Glühstab, vollautomatische Wärmetauscher-Reinigung und Ascheaustragung in eine fahrbare Aschenbox. Abgasrezirkulation AGR serienmäßig integriert. Inkl. großzügigem Pellets-Zwischenbehälter mit integrierter Saugturbine und patentierter Einachs-Zellradschleuse. Rücklaufanhebungsmodul mit Mischermotor und Pumpe integriert.
Pellets-Zwischenbehälter mit integrierter Saugturbine Die Saugturbine transportiert die Pellets von einer Austragungsschnecke oder einer Saugsonde in den Pellets-Zwischenbehälter. Zero Emission Technology
Beim ecoPELLzero werden mit Hilfe einer speziellen Sprühelektrode die feinsten Staubpartikel unter Spannung gesetzt und ionisiert. Durch die Ionisierung werden die geladenen Partikel abgelenkt und legen sich in weiterer Folge als Staubschicht an der Abscheidefläche ab. Die abgeschiedenen Partikel verbleiben somit innerhalb vom Kessel und können nicht mehr mit dem Abgas über den Kamin entweichen.
Regelung ecomanager-touch Komplett mit 7" Farb-Touchdisplay inkl. witterungsgeführter Heizkreisregelung für 1 Heizkreis optional mit Wetter-Prognose-Funktion, 1 Trinkwasserladekreis und 1 Pufferladeregelung inkl. Fühlern. Erweiterbar auf max. 8 Heizkreise, 4 Puffer- und 4 Trinkwasserspeicher, 4 Frischwassermodule mit Zirkulation, Differenzregelung und bis zu 2 Dreikreis-Solarkreise. Möglichkeit zur Visualisierung auf Smartphone, PC und Tablet via mySOLARFOCUS-App, SOLARFOCUS-Connect oder VNC. Mit Hilfe der vorhandenen Modbus-TCP-Schnittstelle kann eine Integration z.B. in das LOXONE Hausautomations-System ohne Zusatzmodule erfolgen. Eine Integration in ein KNX Steuerungssystem ist mit Hilfe eines Konverters ebenso möglich. |

| ecoPELL | 50 | 60 | 70 | 80 | |
| Leistungsbereich | kW | 15-49 | 18-59 | 20,7-69 | 23,7-79 |
| Kesselklasse nach EN303-5:2021 | 5 | 5 | 5 | 5 | |
| Verbundlabel Energieeffizienzklasse (mit Regelung) | |||||
| Abmessungen | |||||
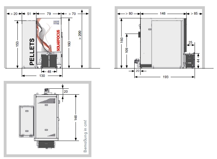
| Breite | cm | 130 | 130 | 130 | 130 |
| Höhe | cm | 160 | 160 | 160 | 160 |
| Tiefe ohne/mit Aschebox und Antrieb | cm | 148/193 | 148/193 | 148/193 | 148/193 |
| Minimale Raumhöhe | cm | 200 | 200 | 200 | 200 |
| Empfohlende Raumhöhe | cm | 230 | 230 | 230 | 230 |
| Abgasseite | |||||
| Abgasrohr DM | cm | 15 | 18 | 18 | 18 |
| Höhe bis Abgasrohr - Mitte | cm | 109 | 109 | 109 | 109 |
| Minimaler Zugbedarf | Pa | 5 | 5 | 5 | 5 |
| Abgasmassenstrom Volllast | g/s | 29 | 36 | 43 | 43 |
| Max. Abgastemperatur Volllast | °C | 140 | 140 | 140 | 140 |
| Gewicht | |||||
| Gewicht PVB + Einschub | kg | 140 | 140 | 140 | 140 |
| Gewicht Kessel | kg | 860 | 860 | 860 | 860 |
| Wasserseite | |||||
| Wasserinhalt | l | 205 | 205 | 205 | 205 |
| Einstellbereich Temperaturregler | °C | 70-85 | 70-85 | 70-85 | 70-85 |
| Maximal zulässige Temperatur | °C | 95 | 95 | 95 | 95 |
| Maximal zulässiger Betriebsdruck | bar | 3 | 3 | 3 | 3 |
| Anschluss KVL/KRL | " | G 6/4" AG | G 6/4" AG | G 6/4" AG | G 6/4" AG |
| Anschluss Füll- und Entleerhahn | " | G 1/2" IG | G 1/2" IG | G 1/2" IG | G 1/2" IG |
| Thermische Ablaufsicherung | " | nicht erforderlich | nicht erforderlich | nicht erforderlich | nicht erforderlich |
| Elektrischer Anschluss | |||||
| Spannungsversorgung, Absicherung | V, Hz, A | 230 V AC/50 Hz, 10 A | 230 V AC/50 Hz, 10 A | 230 V AC/50 Hz, 10 A | 230 V AC/50 Hz, 10 A |
| Brennstoff | |||||
| Aschebox Volumen | l | 51 | 51 | 51 | 51 |
| Pelletsvorratsbehälter | l | 140 | 140 | 140 | 140 |
Geeigneter Brennstoff Pellets EN ISO 17225-2, Klasse A1
(Verbundlabel A+++ bis G)
| Herstellerinformationen | |
| Solarfocus GmbH | |
| Marie-Curie-Str. 14-16 | Mail: office@solarfocus.de |
| D-64653 Lorsch | Web: https://solarfocus.com/de |
| Deutschland |
