Solarbayer Holzvergaserkessel BioX 15 - 45 kW
mit Lambdasteuerung; BAFA förderfähig
mit Lambdasteuerung; BAFA förderfähig
|
bei Abladestelle innerhalb deutsches Festland
|
versandkostenfrei |
1. BImSchV*, Stufe 2
Aktuell gültig für Scheitholzkessel (Installation nach 01.01.2017)
Alle Holzvergaserkessel Solarbayer erfüllen die strengen Grenzwerte der aktuellen Bundes-Immissionsschutzverordnung.
*Erste Verordnung zur Durchführung des Bundes-Immissionsschutzgesetzes (Verordnung über kleine und mittlere Feuerungsanlagen – 1. BImSchV)
Umfassende Solarbayer-Werksgarantie Ab Werk gewähret Solarbayer ganze 5 Jahre Garantie auf die BioX-Serie – und das ohne zusätzliche Kosten. Die Garantiebedingungen finden Sie in der Betriebsanleitung. | ![]() |



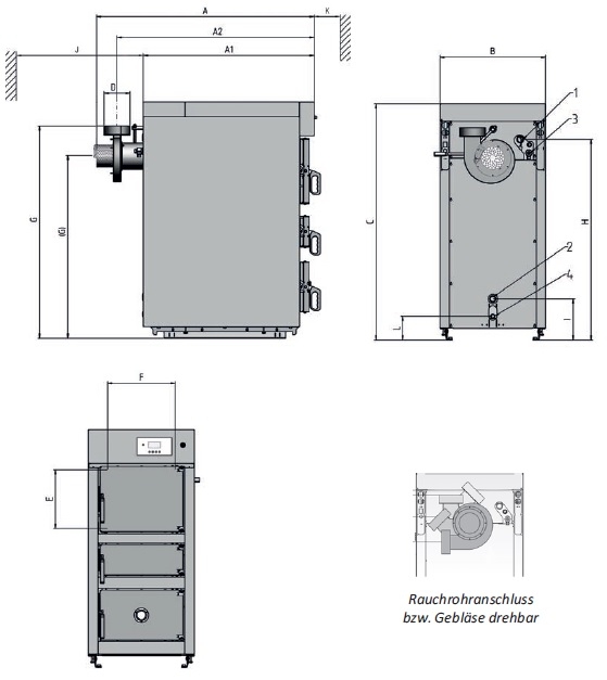
Bei montierter optionaler Kessel-Fronttuüe vergrössert sich die Gesamtlänge des Kessels um 60 mm. Bei optionaler Edelstahl-Füllraumverkleidung reduziert sich das Füllraumvolumen geringfügig.
* Bei einer Raumhöhe unter 2,20 m beim BioX 25/35/45 bzw. unter 2,00 m beim BioX 15/20 ist die Ausführung mit geteilten Turbulatoren erforderlich
** Rechtliche Rahmenbedingungen bzw. Förderkriterien sind zu beachten.
*** Je nach Rohrlänge, Bogenanzahl, Mischer, Umschaltventile etc., auch grösser zu dimensionieren. Die hier genannten Rohrdimensionierungen dienen lediglich als Vorschlag und ersetzen keine fachtechnische Planung.

| Herstellerinformationen | |
Solarbayer GmbH | |
| Am Dörrenhof 22 | Mail: info@Solarbayer.de |
| 85131 Pollenfeld-Preith | Web: https://www.solarbayer.de |
| Deutschland |
